Soluzione indipendente bifamiliare
€ 348.000
Civitanova Marche, Macerata
Dettagli
Contratto Vendita
Rif SL89
Prezzo € 348.000
Provincia Macerata
Comune Civitanova Marche
Indirizzo Contrada San Savino">
Vani 5
Camere 3
Bagni 2
Classe energetica
E (DL 192/2005)
EPI 175 kwh/m2 anno
Riscaldamento autonomo
Condizioni ottime condizioni
Anno di costruzione 1970
Arredato si
Cucina abitabile
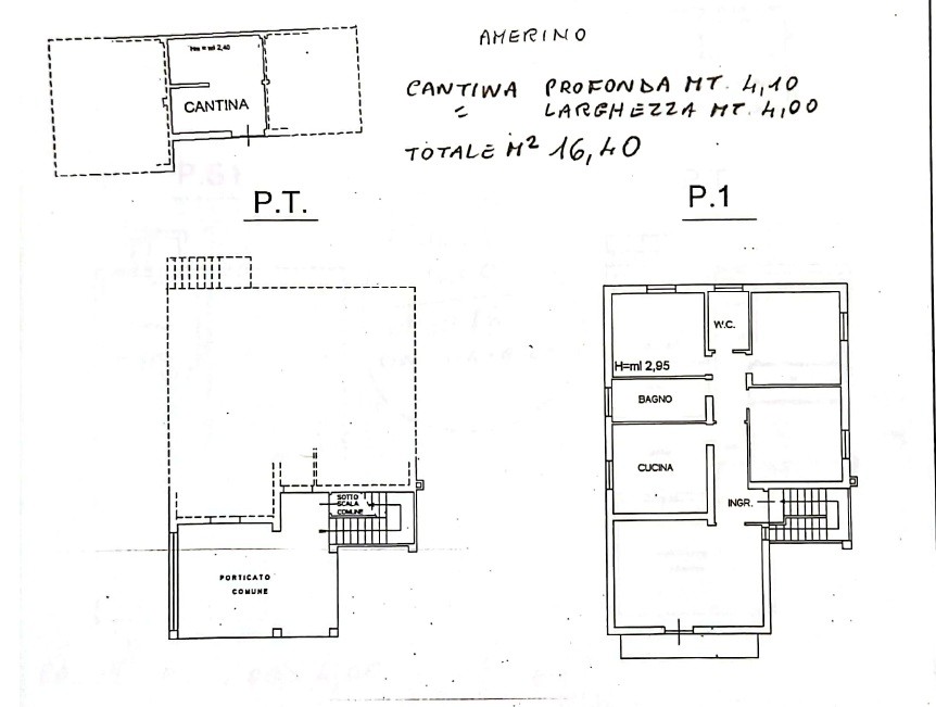
Consistenze
| Descrizione | Superficie | Sup. comm. |
|---|---|---|
| Principali | ||
| Immobile - piano terra | 100 Mq | 100 Mqc |
| Immobile - 1° piano | 138 Mq | 138 Mqc |
| Totale | 238 Mqc | |
IMMOBILE BIFAMILIARE CON VISTA PANORAMICA E AMPIA CORTE – POSIZIONE COLLINARE
In splendida posizione collinare panoramica, immerso nella tranquillità ma non isolato, proponiamo in vendita un immobile indipendente
composto da due unità abitative, circondato da un'ampia corte privata e caratterizzato da una vista aperta e suggestiva sul paesaggio circostante.
La proprietà si sviluppa su due livelli:
- Piano Terra
Unità abitativa da ristrutturare, ideale per essere personalizzata secondo le proprie esigenze oppure per realizzare una seconda abitazione, una dependance per ospiti o una soluzione da mettere a reddito.
- Piano Primo
Appartamento ristrutturato recentemente, in ottime condizioni interne, dotato di:
- impianto di climatizzazione,
- stufa a pellet che alimenta l'intero impianto termoidraulico,
- ambienti luminosi e ben distribuiti, pronti da abitare senza necessità di interventi.
- infissi semi-nuovi in pvc con doppio vetro e zanzariere.
Stato dell'immobile :
- lo stabile esternamente è stato manutenuto circa 8 anni fa (rifacimento pitturazione, grondaie e cornicioni) e si presenta oggi in ottime condizioni generali, con una struttura solida e ben conservata.
Punti di forza :
- Posizione collinare con bellissima veduta panoramica
- La corte esterna, ampia e ben sfruttabile, rappresenta un grande valore aggiunto: perfetta per momenti di relax all'aperto,
per la realizzazione di spazi verdi attrezzati, per chi ama la vita all'aria aperta o necessita di superfici esterne per più utilizzi.
- Due ampi annessi esterni al pian terreno da utilizzare come cantine, garage e ripostigli in genere
- Due unità abitative indipendenti
Ottima soluzione per due nuclei familiari, oppure abitazione + investimento
Contesto tranquillo, riservato e di grande fascino
Soluzione ideale per chi cerca spazio, privacy, panorama e la possibilità di valorizzare una parte dell'immobile secondo le proprie esigenze.
Per informazioni e visite: Johnny 334.9827481
In splendida posizione collinare panoramica, immerso nella tranquillità ma non isolato, proponiamo in vendita un immobile indipendente
composto da due unità abitative, circondato da un'ampia corte privata e caratterizzato da una vista aperta e suggestiva sul paesaggio circostante.
La proprietà si sviluppa su due livelli:
- Piano Terra
Unità abitativa da ristrutturare, ideale per essere personalizzata secondo le proprie esigenze oppure per realizzare una seconda abitazione, una dependance per ospiti o una soluzione da mettere a reddito.
- Piano Primo
Appartamento ristrutturato recentemente, in ottime condizioni interne, dotato di:
- impianto di climatizzazione,
- stufa a pellet che alimenta l'intero impianto termoidraulico,
- ambienti luminosi e ben distribuiti, pronti da abitare senza necessità di interventi.
- infissi semi-nuovi in pvc con doppio vetro e zanzariere.
Stato dell'immobile :
- lo stabile esternamente è stato manutenuto circa 8 anni fa (rifacimento pitturazione, grondaie e cornicioni) e si presenta oggi in ottime condizioni generali, con una struttura solida e ben conservata.
Punti di forza :
- Posizione collinare con bellissima veduta panoramica
- La corte esterna, ampia e ben sfruttabile, rappresenta un grande valore aggiunto: perfetta per momenti di relax all'aperto,
per la realizzazione di spazi verdi attrezzati, per chi ama la vita all'aria aperta o necessita di superfici esterne per più utilizzi.
- Due ampi annessi esterni al pian terreno da utilizzare come cantine, garage e ripostigli in genere
- Due unità abitative indipendenti
Ottima soluzione per due nuclei familiari, oppure abitazione + investimento
Contesto tranquillo, riservato e di grande fascino
Soluzione ideale per chi cerca spazio, privacy, panorama e la possibilità di valorizzare una parte dell'immobile secondo le proprie esigenze.
Per informazioni e visite: Johnny 334.9827481
Video
Richiedi maggiori informazioni
Mappa
Zoom della mappa
Apri con:
Apple Maps
Google Maps
Waze
Contattaci
Habitat Immobiliare
Via Spontini, 2 62012 CIVITANOVA MARCHE (MC)
Via Spontini, 2 62012 CIVITANOVA MARCHE (MC)
P.IVA: 02219630445
+393395483832





