Immobile allo stato grezzo frazionabile
€ 220.000
Civitanova Marche, Macerata
Dettagli
Contratto Vendita
Rif SL69
Prezzo € 220.000
Provincia Macerata
Comune Civitanova Marche
Indirizzo Strada Del Pincio">
Vani 8
Camere 6
Bagni 3
Classe energetica
G (DL 192/2005)
EPI 175 kwh/m2 anno
Riscaldamento autonomo
Condizioni da ristrutturare
Anno di costruzione 1987
Cucina angolo cottura
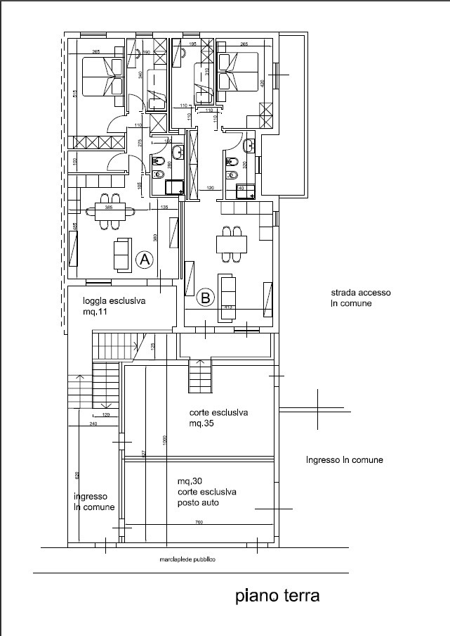
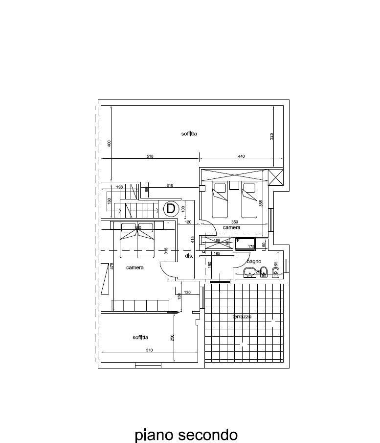
Consistenze
| Descrizione | Superficie | Sup. comm. |
|---|---|---|
| Principali | ||
| Box/Garage - seminterrato | 121 Mq | 60 Mqc |
| Immobile - piano rialzato | 128 Mq | 128 Mqc |
| Immobile - 1° piano | 128 Mq | 128 Mqc |
| Mansarda - 2° piano | 55 Mq | 55 Mqc |
| Soffitta - 2° piano | 48 Mq | 24 Mqc |
| Terrazza - 2° piano | 16 Mq | 5 Mqc |
| Balcone - piano rialzato | 16 Mq | 5 Mqc |
| Esterno - piano terra | 200 Mq | 20 Mqc |
| Balcone - 1° piano | 16 Mq | 5 Mqc |
| Box/Garage - piano terra | 40 Mq | 20 Mqc |
| Totale | 450 Mqc | |
In zona ottimamente servita ed a poca distanza dal centro storico proponiamo immobile
allo stato grezzo di ampie dimensioni.
All'attualità lo stabile (in buone condizioni generali) è allo stato grezzo e si presta molto
bene per la realizzazione di una villetta bifamiliare o per un'ipotetica divisione in più unità abitative.
A completamento della proprietà abbiamo un'ampia corte esterna ed un comodo garage
al pian terreno.
Se desiderate effettuare un sopralluogo o avere maggiori informazioni non esitate a contattarci!
allo stato grezzo di ampie dimensioni.
All'attualità lo stabile (in buone condizioni generali) è allo stato grezzo e si presta molto
bene per la realizzazione di una villetta bifamiliare o per un'ipotetica divisione in più unità abitative.
A completamento della proprietà abbiamo un'ampia corte esterna ed un comodo garage
al pian terreno.
Se desiderate effettuare un sopralluogo o avere maggiori informazioni non esitate a contattarci!
Video
Richiedi maggiori informazioni
Mappa
Zoom della mappa
Apri con:
Apple Maps
Google Maps
Waze
Contattaci
Habitat Immobiliare
Via Spontini, 2 62012 CIVITANOVA MARCHE (MC)
Via Spontini, 2 62012 CIVITANOVA MARCHE (MC)
P.IVA: 02219630445
+393395483832





